Bilocale in vendita

Avellino, Via Giosuè Carducci
€ 179.000
2 locali 2 locali
70 Mq 70 Mq
1 bagno 1 bagno

Bilocale in vendita

Avellino, Via Giosuè Carducci

Descrizione annuncio

VIA GIOSUE' CARDUCCI

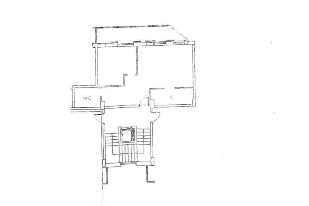
In zona centrale e ben servita dalle principali attività commerciali di prima necessità proponiamo la vendita di un bilocale completamente arredato ed in ottimo stato interno.

All'interno di un fabbricato edificato nell'anno 2014, al piano secondo, raggiungibile mediante ascensore, si accede all'immobile. Ingresso in salone cucina unico ambiente, una camera da letto matrimoniale e bagno cieco con doccia. Unica ampia balconata che serve la camera da letto e la zona giorno.

La soluzione è in ottimo stato abitativo: porta di caposcala blindata, videocitofono, infissi con vetrocamera, porta del bagno scorrevole.

Si propone la vendita dell'immobile comprensiva di tutti gli arredi.

A completare ed ad impreziosire, un posto auto coperto, al piano S1, all'interno di un box, in comproprietà, raggiungibile mediante ascensore.

Ideale sia per investimento, considerato l'ottimo stato dell'immobile, l'arredo e la metratura, sia per single alla ricerca di un'indipendenza.

Per visionare l'immobile è necessario concordare un appuntamento, almeno due giorni prima, con i proprietari che attualmente lo occupano e con un nostro collaboratore.

I metri quadrati complessivi, indicati nella presente offerta pubblicitaria, sono calcolati tenendo in considerazione tutte le superfici interne ed esterne dell'immobile con relative pertinenze annesse, adottando i parametri classici per una stima sintetica comparativa come utilizzato nel DPR 138 DEL 23 MARZO 1998.

Mostra tutto

Nelle vicinanze

Trasporto pubblico Trasporto pubblico
Avellino
Avellino
2,6 Km
Tribunale A
Tribunale A
430 m
Trasporto pubblico
850 m
Ricariche auto elettriche Ricariche auto elettriche
EnelX Centro Direzionale Collina Liguorini
1,4 Km
Scuole Scuole
Scuole
100 m
Scuola Primaria "Regina Margherita"
300 m
Scuola Secondaria "Leonardo da Vinci"
380 m
Scuola Secondaria "Enrico Cocchia"
380 m
Scuola Secondaria "Dante Alighieri"
410 m
Ospedali Ospedali
Ospedale San Giuseppe Moscati
1,2 Km
Casa di Cura Malzoni - Villa dei Platani
1,4 Km
Villa Esther
1,5 Km
Supermercati Supermercati
Carrefour Market
550 m
Decò
1,0 Km
Ipercoop
1,0 Km
Supermercati
1,2 Km
Conad
1,4 Km
Negozi Negozi
Negozi
480 m
Bar Pasticceria Scannelli
1,4 Km
Oviesse
2,4 Km
Conbipel
2,6 Km
Bar Bar
Suite Lounge Bar
1,3 Km
Ristoranti Ristoranti
Pizzeria da Michele
680 m
Ciao
1,0 Km
Mostra tutto

Caratteristiche

Rif.:
60947836
Piano:
2 di 5 con ascensore (Piano medio)
Posti auto:
1
Balconi:
1
Camere da letto:
1
Arredamento:
Completo
Mostra tutto
Prezzo Prezzo
€ 179.000
Rata mutuo Rata mutuo
€ 843 / mese
Spese annue Spese annue
€ 420
Proponi il tuo prezzoProponi il tuo prezzo
Immobile valutato con T·Valuta

Classe Energetica

B
B
B
B
B
B
B
B
B
EP invernale del fabbricato:
EP estiva del fabbricato:
Anno di costruzione:
2014
Riscaldamento:
Autonomo
Tipo impianto:
A radiatori
Tipo alimentazione:
Metano

Ti interessa visionare l'immobile?

Fissa un appuntamento  Fissa un appuntamento

Richiedi informazioni

Clicca su Leggi per aprire l'informativa
* Questi campi sono obbligatori

Calcola il tuo mutuo

Semplice e senza impegno
Anticipo

( % )
Mutuo

( % )

pochi semplici passi

inserisci i tuoi dati
Questionario completato
Grazie per aver richiesto un appuntamento senza impegno con un nostro Consulente del Credito e Assicurativo.

Hai inserito correttamente tutti i dati necessari e a breve riceverai una e-mail con un link da convalidare per inviare i tuoi dati.
Affiliato
Avellino Residenziale Srl
Via Tagliamento, 20 83100 Avellino (AV)

Il nostro staff


  • Valentina Minetti
    Collaboratrice

  • Sabrina Fusco
    Affiliata

  • Daniela Barbaro
    Coordinatrice

  • Roberto Fusco
    Responsabile

  • Daniela Lombardi
    Collaboratrice

  • Giuseppina Iantosca
    Coordinatrice
Via Tagliamento, 20 83100 Avellino (AV)
Zona: Tagliamento
Mostra su mappa
Orari: dal lunedì al venerdì: mattina 09:00/13:00; pomeriggio 15:00/20:00; sabato: mattina 09:00/13:00; pomeriggio 15:00/19:00
Affiliato
Avellino Residenziale Srl
Via Tagliamento, 20 83100 Avellino (AV)

2026 Tecnocasa Franchising S.p.A. - P. IVA 08365160152 - Via Monte Bianco 60/A 20089 Rozzano (MI). Ogni agenzia ha un proprio titolare ed è autonoma. Privacy policy | Policy utilizzo | Cookie policy