Trilocale in vendita

Volturara Irpina, Via Laura
€ 90.000
3 locali 3 locali
182 Mq 182 Mq
1 bagno 1 bagno

Trilocale in vendita

Volturara Irpina, Via Laura

Descrizione annuncio

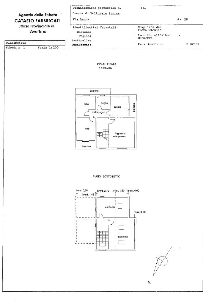
Volturara Irpina, in via Laura proponiamo un appartamento situato al primo piano di un fabbricato costruito nel 2003 non provvisto di ascensore.
L'immobile, di 85 mq interni, offre spazi ben distribuiti e funzionali. L'ingresso conduce ad un ampio salone dotato di camino, ideale per momenti di relax e convivialità. La cucina abitabile è perfetta per chi ama cucinare e condividere pasti in famiglia. Completano due camere da letto, che garantiscono comfort e privacy, ed un bagno.
Il riscaldamento è garantito da un efficiente sistema a radiatori alimentati a metano, integrato da un accogliente camino, perfetto per creare un'atmosfera calda e rilassante durante le stagioni più fredde.
Un valore aggiunto è la mansarda di esclusiva pertinenza di 45 mq, composta da tre ambienti versatili, uno dei quali perfetto per essere utilizzato come ripostiglio.
Un ulteriore punto di forza è rappresentato dagli 800 mq di terreno annesso, che offrono la possibilità di godere di uno spazio esterno privato, ideale per attività all'aperto o per chi desidera coltivare un giardino. .
Completa la proprietà un comodo posto auto, per chi desidera la praticità di un parcheggio riservato.
Questa soluzione abitativa si distingue per la sua posizione tranquilla rendendola un'opportunità interessante per chi cerca una residenza in un contesto sereno.

Mostra tutto

Caratteristiche

Rif.:
61122519
Piano:
1 di 3 (Piano basso)
Posti auto:
1
Balconi:
3
Camere da letto:
2
Arredamento:
Assente
Mostra tutto
Prezzo Prezzo
€ 90.000
Rata mutuo Rata mutuo
€ 424 / mese
Spese annue Spese annue
€ 0
Proponi il tuo prezzoProponi il tuo prezzo

Classe Energetica

D
D
D
D
D
D
D
D
D
EP globale non rinnovabile:
55.83 kW h/m² anno
EP globale rinnovabile:
0.74 kW h/m² anno
EP invernale del fabbricato:
EP estiva del fabbricato:
Anno di costruzione:
2003
Riscaldamento:
Autonomo
Tipo impianto:
A radiatori
Tipo alimentazione:
Metano

Ti interessa visionare l'immobile?

Fissa un appuntamento  Fissa un appuntamento

Richiedi informazioni

Clicca su Leggi per aprire l'informativa
* Questi campi sono obbligatori

Calcola il tuo mutuo

Semplice e senza impegno
Anticipo

( % )
Mutuo

( % )

pochi semplici passi

inserisci i tuoi dati
Questionario completato
Grazie per aver richiesto un appuntamento senza impegno con un nostro Consulente del Credito e Assicurativo.

Hai inserito correttamente tutti i dati necessari e a breve riceverai una e-mail con un link da convalidare per inviare i tuoi dati.
Affiliato
Avellino Residenziale Srl
Via Tagliamento, 20 83100 Avellino (AV)

Il nostro staff


  • Valentina Minetti
    Collaboratrice

  • Sabrina Fusco
    Affiliata

  • Daniela Barbaro
    Coordinatrice

  • Roberto Fusco
    Responsabile

  • Daniela Lombardi
    Collaboratrice

  • Giuseppina Iantosca
    Coordinatrice
Via Tagliamento, 20 83100 Avellino (AV)
Zona: Tagliamento
Mostra su mappa
Orari: dal lunedì al venerdì: mattina 09:00/13:00; pomeriggio 15:00/20:00; sabato: mattina 09:00/13:00; pomeriggio 15:00/19:00
Affiliato
Avellino Residenziale Srl
Via Tagliamento, 20 83100 Avellino (AV)

2026 Tecnocasa Franchising S.p.A. - P. IVA 08365160152 - Via Monte Bianco 60/A 20089 Rozzano (MI). Ogni agenzia ha un proprio titolare ed è autonoma. Privacy policy | Policy utilizzo | Cookie policy